Звоните: +7 (920) 979-69-85
Звоните: +7 (915) 592-08-60
Email: info@garantstroi62.ru
г. Рязань, ул. Островского, д. 21, к. 2
ВКонтакте
Главная
Услуги
Строительство каменных домов
Строительство каркасных домов
Проектирование домов
Подключение дома к газовым и электро сетям
Каменные дома
Галерея построенных домов
Проект дома П 1-66
Проект дома П 1-79
Проект дома П 1-83
Проект дома П 1-87
Проект дома П 1-88
Проект дома П 1-92
Проект дома П 1-93
Проект дома П 1-95
Проект дома П 1-122
Проект дома П 1-129
Проект дома П 1-133
Проект дома П 1-155
Проект дома П 1-160
Проект дома П 1-162
Проект дома П 1-169
Проект дома П 1-180
Проект дома П 2-196
Каркасные дома
Галерея построенных домов
Проект дома К 1-41
Проект дома К 1-44
Проект дома К 1-65
Проект дома К 1-56
Проект дома К 2-66
Проект дома К 1-83
Проект дома К 1-84
Проект дома К 1-86
Проект дома К 1-113
Проект дома К 2-103
Дома в продаже
Дом в продаже - п.Передельцы
Дом в продаже - с.Поляны
Дом в продаже - с.Агро-Пустынь
Дом в продаже - с.Агро-Пустынь
Дом в продаже - с.Казарь
Дом в продаже - с.Казарь
О компании
Контакты
Обратный звонок
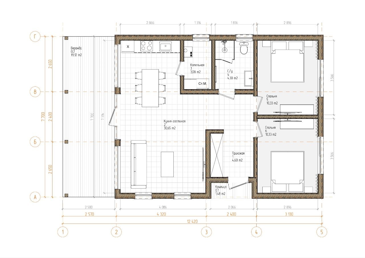
Проект каркасного дома К 1-83
Каркасные дома
Проект дома К 1-83
Проект каркасного дома К 1-83
Характеристики
Площадь:83 м2
Жилая площадь:63 м2
Площадь веранды/крыльца:20 м2
Стоимость
4 810 000 руб.
Другие проекты
×
Обратный звонок
Отправить
×
Узнать о ипотеке
Отправить
×
Рассчитать проект
Отправить